Котёл КВ-5,0 на угле с ТЧЗМ в Орле

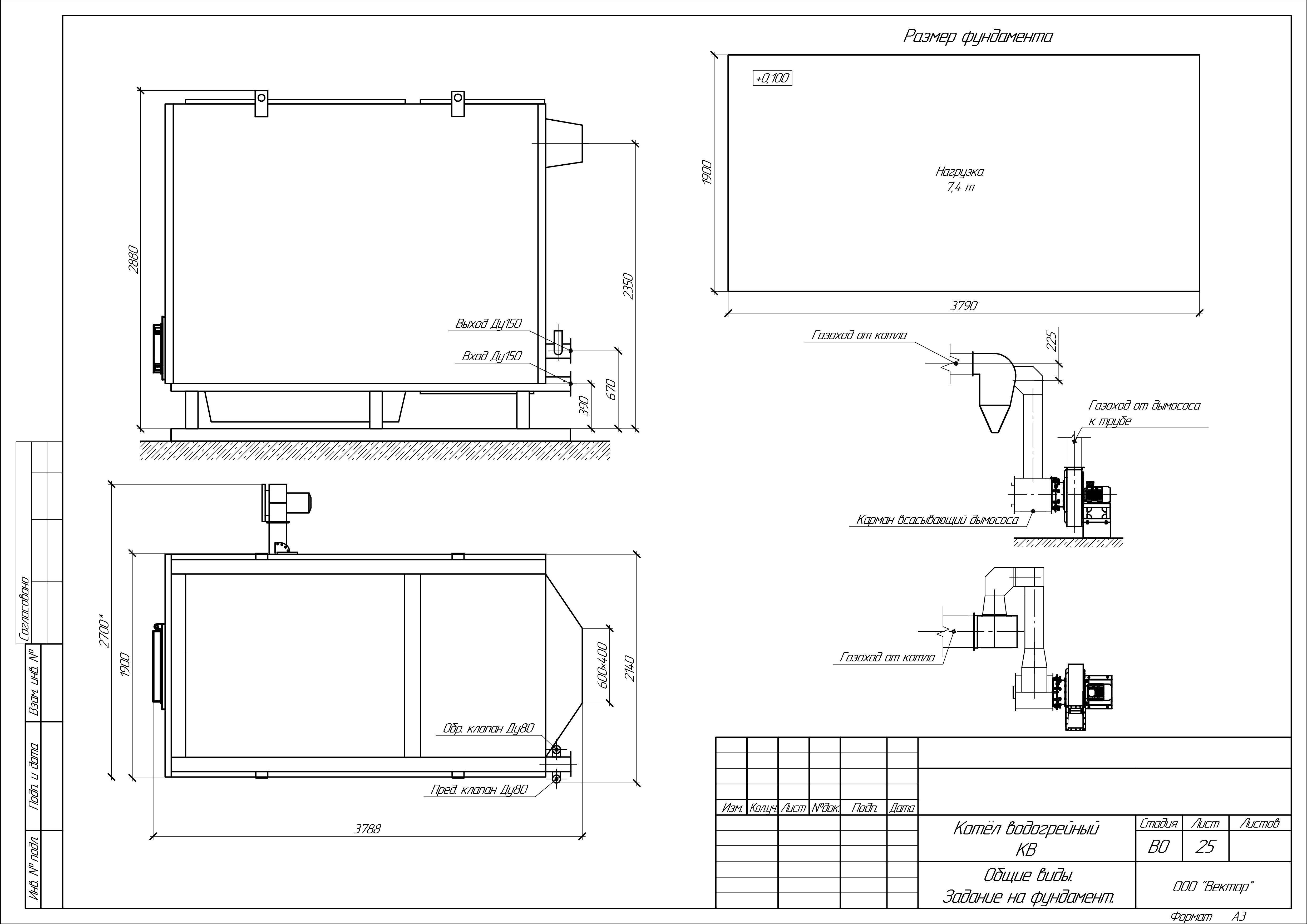
КВ-5.0 на угле с топкой ТЧЗМ представляет собой универсальный котёл твердотопливного типа, который изготовлен из стали и оборудован механической системой подачи топлива. Устройства рассчитаны на регулируемый нагрев воды до 115 градусов. Котлы такого типа имеют широкую сферу целевого использования в промышленности и коммунальном хозяйстве.

Цена:
1 305 000 руб.
Количество:
Отправляя свои личные данные через формы на сайте, Вы даёте своё согласие на обработку персональных данных согласно Федеральному закону №152-ФЗ «О персональных данных» от 27.07.2006 г. в редакции от 01.07.2017.

Устройство и принцип работы котла КВ-5.0 на угле с топкой ТЧЗМ

КВ-5.0 состоит из прочного стального корпуса, который имеет сварные стенки. Оборудование оснащено топкой ТЧЗМ. Данный вид топки подразумевает наличие механических забрасывателей, которые дополнены решеткой цепного типа для обратного хода. Благодаря данному механизму забрасывающая система обладает средней производительностью до 20-25 тонн в час. Корпус из газоплотной стали хорошо выдерживает высокие температуры. Заводские котлы рассчитаны на работу с топливом, которое имеет не более 40% влажности. Все фирменные приборы оборудованы специальной арматурой запорного типа.

Особенности и ключевые преимущества

Устройства КВ-5.0 на угле с топкой ТЧЗМ рассчитаны на высокопродуктивную и длительную работу. Котлы способны обеспечивать теплом множество потребителей. Следует выделить несколько ключевых преимуществ:

  • высокая емкость оборудования;
  • полная механизация всех процессов;
  • большая производительность оборудования;
  • высокая надежность конструкции;
  • экономичность во время работы;
  • низкие требования для настройки и установки.

Заводские устройства имеют надежную защиту от накипи и окисления. Котлы оснащены всеми Необходимыми средствами безопасности в виде термометров и сбрасывающих клапанов.

Размещение КВ-5.0 на угле с топкой ТЧЗМ и установка

Размещение агрегатов планируется с учетом технических требований. Перед установкой осуществляется проверка качества бетонного основания. Специалисты проводят различные измерения в горизонтальной и вертикальной плоскости. Также осуществляется подведение других коммуникаций, которые необходимы для управления котельными системами. После установки проводится проверка работы всех систем.

Эксплуатация и техническое обслуживание

Котёл КВ-5.0 на угле с топкой ТЧЗМ предназначен для нагрева воды, которая поставляется потребителям. Котлы целесообразно использовать промышленным и коммунальным предприятиям, которые осуществляют поставки теплоносителя. Высокая мощность систем позволяет непрерывно снабжать потребителей.

Приобрести котёл КВ-5.0 на угле с топкой ТЧЗМ у нас

Приобрести котёл КВ-5.0 на угле с топкой ТЧЗМ и другие модификации можно через нашу компанию. Также возможен предварительный заказ оборудования через сайт и форму обратной связи. Дополнительно покупатели имеют возможность заказать котел по телефону. Предварительно необходимо ознакомиться с характеристиками.

Характеристики
Тип: КВ
Вид топлива: Каменный уголь$Бурый уголь
Мощность: 4.31 Гкал
Мощность: 5000 кВт
Мощность: 5 МВт
КПД, не менее: 85 %
Вид топки: Механическая ТЧЗМ
Класс котла: 2
Отапливаемая площадь: 50000 м²
Отапливаемый объём: 150000 м³
Тяга: Принудительная
Температура воды на выходе, не менее: 70...95 °С
Аэродинамическое сопротивление: 510 Па (мм. вод. ст.)
Расход теплоносителя среды: 172 м³/ч
Расход топлива: 1176 кг/ч
Низшая теплота сгорания топлива: 5200 кКал/кг
Давление рабочей среды: 0,3-0,6 (3,0-6,0) МПа (кгс/cм²)
Гидравлическое сопротивление при перепаде t: 0,12 МПа (кгс/cм²)
Температура уходящих газов: 180…200 °C
Радиационная поверхность нагрева: 34.6 м²
Конвективная поверхность нагрева: 92.4 м²
Номинальное разрежение в топке при работе: 20…40 Па
Габаритные размеры (ДxШxВ): 4950x1900x2880 м
Масса котла (без воды): 5700 кг
Расчетный срок службы, не менее: 10 лет

Города поставок

Москва
Пн-Пт 09:00 - 18:00
Сб 09:00 - 17:00
Карачаево-Черкесская Республика
Пн-Пт 09:00 - 18:00
Сб 09:00 - 17:00
Екатеринбург
Пн-Пт 09:00 - 18:00
Сб 09:00 - 17:00

Совершите покупку за 4 шага

Шаг 1
Выберите товары из каталога
Шаг 2
Поместите нужные вам товары в корзины
Шаг 3
Укажите свои контактные данные в форме обратной связи
Шаг 5
Ожидайте звонка от менеджера для оформления покупки

Похожие товары

КВм
Котлы КВм
Цена от 0 руб.
Отопительные котлы
Водогрейный котел КВм-7.0 на ДВО используется для нагрева жидкости до 115 °С, применяемой в системах отопления и горячего водоснабжения. Отопительные приборы КВм-7.0 способны прогревать помещения площадью до 70000 м². Твердотопливный котел оснащается механической топкой на древесных отходах со шнековой подачей. Дополнительно к агрегату приобретаются сопутствующие товары: вентиляторы, дымососы, циклоны, дымовые трубы, бункер топки и другое котельное оборудование.
Отопительные котлы
Водогрейный котел КВм-6.3 на ДВО используется для нагрева жидкости до 115 °С, применяемой в системах отопления и горячего водоснабжения. Отопительные приборы КВм-6.3 способны прогревать помещения площадью до 63000 м². Твердотопливный котел оснащается механической топкой на древесных отходах со шнековой подачей. Дополнительно к агрегату приобретаются сопутствующие товары: вентиляторы, дымососы, циклоны, дымовые трубы, бункер топки и другое котельное оборудование.
Вы смотрели эти товары
Отопительные котлы
Стальные котлы КВ-0.35 на угле представляют собой универсальные устройства для нагрева воды, которые оборудованы топкой типа ТЛЗМ. Нагревательные агрегаты отличаются высокой продуктивностью работы и практичностью целевой эксплуатации. Использование твердого топлива и системы специальной конфигурации позволяет осуществлять нагрев воды до 115 градусов.
Отопительные котлы
КВ-5.0 на угле с топкой ТЧЗМ представляет собой универсальный котёл твердотопливного типа, который изготовлен из стали и оборудован механической системой подачи топлива. Устройства рассчитаны на регулируемый нагрев воды до 115 градусов. Котлы такого типа имеют широкую сферу целевого использования в промышленности и коммунальном хозяйстве.
Отопительные котлы
КВ-0.8 на угле с топкой ТЧЗМ представляет собой универсальный котёл твердотопливного типа, который изготовлен из стали и оборудован механической системой подачи топлива. Устройства рассчитаны на регулируемый нагрев воды до 115 градусов. Котлы такого типа имеют широкую сферу целевого использования в промышленности и коммунальном хозяйстве.